Артикул:
TD-4000R
Двухстоечный электрогидравлический асимметричный подъемник на 4 тонны TD-4000R (ручка съем) Предназначен для ремонта и обслуживания автомобилей различного класса, в том числе рамных внедорожников и микроавтобусов. Особенностью данной модели является функция снятия кареток со стопоров, на одной колонне.
Технические характеристики TD-4000





Основные конкурентные преимущества TD-4000R
• Увеличена ширина проезда и общая ширина подъемника относительно подобных подъемников предлагаемых на рынке;
• Увеличена длина передних и задних лап, для возможности работы с длиннобазными автомобилями;
• Съемный ролик, с дополнительными направляющими дает плавность хода, простоту в обслуживании и замене расходных материалов;
• Внутреннее крепление лап подъемника надежнее и обеспечивает ниже подхват;
• Двенадцати зубчатая система фиксации лап гораздо надежнее и безопаснее чем на аналогичных подъемниках;
• Изогнутый профиль деталей каретки подъёмника даёт большую конструктивную жесткость;
• Эластичный стальной трос диаметром 8 мм позволяет снизить износ деталей;
• Толщина основания подъемника 21 мм, тогда как у остальных аналогичных подъемников она составляет 14-16 мм;
• Толщина колонны 5,5 мм. Толщина не покрашенного металла 5 мм;
• Толщина метала на лапе подъемника 6,5 мм;
• Резиновые отбойники на колонне подъемника в стандартной комплектации;
• Снятие со стопоров рычагом, расположенным на колонне:
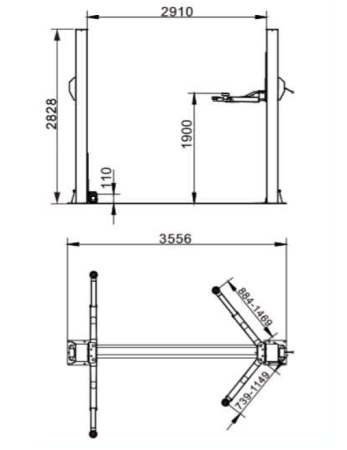
Грузоподъемность, кг | 4000 |
Высота подъема, мм | 1900 |
Высота подъема с удлинителями, мм | 1960 |
Мин.высота подхвата, мм | 110 |
Короткая лапа, мм | 598-1071 |
Длинная лапа, мм | 919-1400 |
Общая высота, мм | 2828 |
Общая ширина, мм | 3556 |
Ширина между колоннами, мм | 2910 |
Напряжение, В | 220/380 |
Мощность, кВт | 2.2 |
Габаритные размеры в упаковке, мм | 2900х600х800 |
Масса, кг | 600 |





Страна производства
|
Китай |
Бренд
|
FLYING (Китай) |
Синхронизация
|
нижняя |
Тип подъемника
|
стационарный |
Выс.подъем.для подъемников
|
1900 |
Мин.подх.для подъемников
|
110 |
Грузоподъемность подъемника
|
4000 |
Вид подъемника
|
легковой |
Тип привода подъемника
|
электрогидравлический |
Напряжение питания
|
220/380 |
Цвет
|
синий |
Разблокировка подъемника
|
ручка-съем |
Отзывы
Оставить отзыв
Загрузка отзывов...
Вы можете воспользоваться одним из следующих вариантов оплаты:
- Оплата наличными. Мы принимаем наличные деньги (только рубли) через кассовый фискальный аппарат.
- Безналичный расчет для юридических и частных лиц.
- Оплата банковской картой. Оплата происходит через ПАО СБЕРБАНК с использованием Банковских карт следующих платежных систем: VISA, VISA Electron, Maestro, MasterCard, МИР
Товар можно получить одним из следующих способов:
- Самовывоз товара с пункта выдачи по адресу в вашем городе.
- Курьерская доставка с 9-00 до 23-00 по рабочим дням. Покупатель обязуется разгрузить оборудование собственными силами и в кратчайшие сроки. Простой автомобиля оплачивается отдельно.
- Доставка одной из следующих транспортных компаний: "ПЭК" (Первая Экспедиционная Компания), "ЖДЭ" (ЖелДорЭкспедиция), "ЭНЕРГИЯ", "ДЕЛОВЫЕ ЛИНИИ", "СДЭК" и другие.